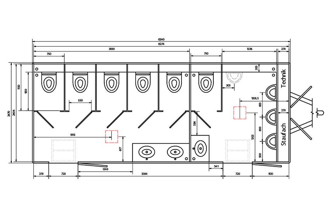
Toilettenwagen D5-H1-5

  • LED-Beleuchtung
  • Industriegießfußboden
  • Frischwassereinspeisung
  • Druckspülarmaturen
  • wandhängende Toiletten
  • 5 Damen-Toiletten + 2 Handwaschbecken
  • 1 Herren-Toilette + 5 Urinale + 1 Handwaschbecken
  • verschiebbare Trennwand
  • Anschluss an Frisch- und Abwasserleitungen erforderlich
  • Erstbestückung der Verbrauchsartikel (Papierhandtücher, Seife, Toilettenpapier)
Technische Details
Höhe 2,15 m
Höhe gesamt 2,85 m
Breite 2,40 m
Breite gesamt 2,48 m
Länge 6,20 m
Länge mit Deichsel 7,90 m
Gewicht 1800 kg

Zubehör und ähnliche Produkte

Zubehör und ähnliche Produkte